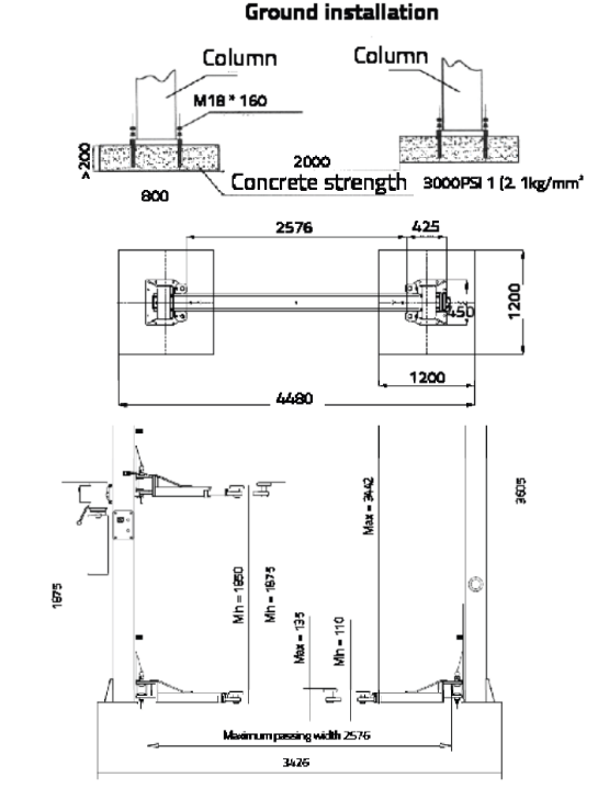
Description
Product: 4 Ton manual release – Clear floor
A Clear Floor lift version has no obstruction between the 2 posts. They are considered ideal for when transmission jacks are constantly in use or cars with a low ride height. The steel ropes and hydraulic pipes go over the top.








